El Cabildo de Lanzarote mejora el acceso a la Escuela de Turismo

Ejecutará en Tahíche una nueva calle para facilitar el acceso también a la zona norte de la residencia de mayores de alto rendimiento
- Lancelot Digital
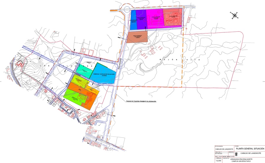
El Cabildo de Lanzarote ha sacado a licitación la redacción de un proyecto de urbanización para ejecutar una nueva calle en Tahíche, fundamentalmente al objeto de conectar el acceso norte del futuro campus universitario y la nueva residencia de mayores de alto requerimiento que se ejecutará en esta zona situada entre el Mojón Alto y Los Calderones.
La consejera de Obras Públicas y de la Unidad de Coordinación y Planificación de Proyectos, Saray Rodríguez (PP), explicó que la redacción de este proyecto, sale a licitación por 14.018 euros, cofinanciados a través de la Institución y del Fondo de Desarrollo de Canarias (FDCAN).
"Pretendemos ejecutar esta nueva calle en el núcleo de Tahíche, donde confluyen gran parte de los centros dependientes y red asistencial de la primera Institución, para facilitar los accesos a este nuevo recurso sociosanitario que se va a ejecutar para mayores y -a su vez- dejar ya urbanizado y con todas las dotaciones de red eléctrica y de saneamiento, entre otras, la conexión y acceso norte al futuro campus universitario", explicó la consejera.